Locale commerciale in Vendita Milano Stazione Centrale

Descrizione

Locale commerciale in Vendita di 90 mq in via Adeodato Ressi 21
Proponiamo in Vendita un Locale commerciale di circa 90 mq situato a piano strada in Via Adeodato Ressi, in zona ben servita e di buon passaggio.
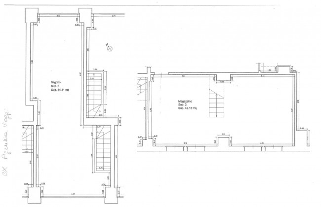
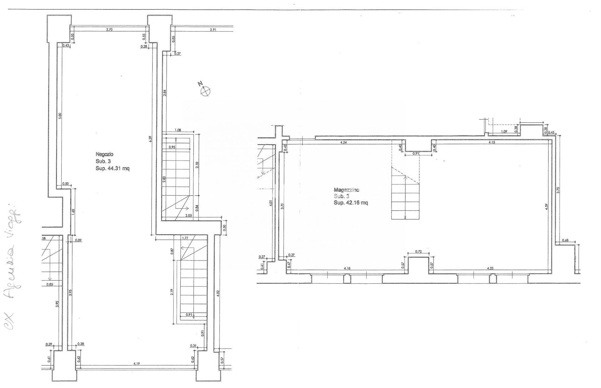
L'immobile si sviluppa su due livelli:
_ 45 mq al piano terra, adibiti a negozio, con due ampie vetrine su strada che garantiscono ottima visibilità e luminosità
_ 45 mq al piano interrato, ad uso magazzino, comodamente collegato tramite scala interna

Il locale dispone di doppio ingresso, sia dalla strada che dal cortile interno, perfettamente adatto per carico/scarico merci.
Si presenta in perfette condizioni, pronto all'uso, con soffitti alti e ambienti ariosi. È inoltre dotato di impianto di aria condizionata.
Soluzione ideale per diverse attività commerciali o professionali.
L'immobile è libero e subito disponibile.

Prezzo: € 145.000
90 mq
1
Classe energetica: E EP glnr: 533.26 kwh/㎡
Via Adeodato Ressi, 21, Milano
Caratteristiche
Indirizzo:Via Adeodato Ressi, 21
Totale mq:90 mq
Bagni:1
Locali:2
Stato conservazione:Buono
Mq coperti: 90 mq
Numero Vetrine: 2
Riscaldamento: Centralizzato
Arredato: Arredato
Posizione: Semicentrale
Spese condominio: € 200
Aria condizionata
Bagni: da ristrutturare
Nelle vicinanze
Palestre
Centri Benessere
Campi da Calcio
Complessi Sportivi
Campi da Tennis
Piste Ciclabili
Parchi Giochi
Stazione Ferroviaria
Trasporti Pubblici
Asilo
Scuole Elementari
Scuole Medie
Scuole Superiori
Bar
Uffici postali
Centri commerciali
Uffici comunali
Metropolitana - Passante
Ospedale
Universita'
Movida
Farmacia
Planimetrie
Locale commerciale in vendita - Stazione Centrale
#

Valutazione
Immobiliare online

Ottieni subito con il nostro servizio online una valutazione immobiliare gratuita per sapere il valore della tua casa. successivamente valuteremo la tua proprietà e ti forniremo un rapporto dettagliato su quelli che consideriamo i suoi punti di forza e di debolezza e su come pensiamo che dovrebbe essere commercializzata.

Sei interessato? Contattaci!



Locale commerciale in Vendita
Milano Stazione Centrale
90 mq
1
Prezzo: € 145.000
Menu
Ricerca
Scrivici