Appartamento in Vendita Milano Centro Storico

Descrizione

L'Appartamento si trova in Via Mellerio, in una posizione centrale ma tranquilla, all'interno di un elegante condominio d'epoca recentemente restaurato nelle parti comuni. Lo stabile si presenta in ottime condizioni ed è caratterizzato da dettagli architettonici originali, che conferiscono grande luminosità e ariosità agli ambienti. Il contesto è silenzioso e ben curato, ideale per chi desidera vivere in città senza rinunciare alla privacy e alla tranquillità.
La zona è strategica e ben servita: nelle immediate vicinanze si trovano negozi, servizi di ogni genere e collegamenti efficienti con i mezzi pubblici di superficie, che consentono di raggiungere comodamente le principali aree della città. Una soluzione perfetta sia come abitazione principale sia come investimento.
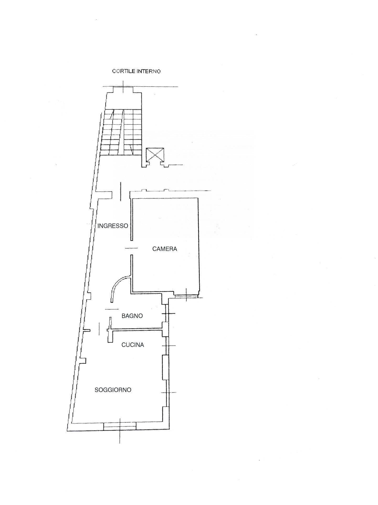
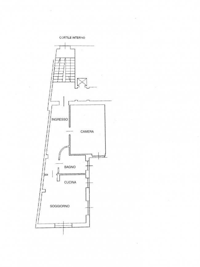
L'Appartamento, di circa 60 mq, si trova al quarto piano ed è composto da ingresso su disimpegno, ampio soggiorno con cucina a vista, bagno, camera matrimoniale, oltre a cantina. Si presenta in buone condizioni interne, viene venduto completamente arredato con arredo recente incluso nel prezzo ed è abitabile da subito. Grazie alla tripla esposizione risulta particolarmente luminoso e silenzioso.
L'immobile è dotato di porta blindata, infissi in legno con doppi vetri che garantiscono comfort termico e isolamento acustico.
Disponibilità immediata. Per ulteriori informazioni o per fissare una visita, non esitate a contattarci.

Prezzo: € 670.000
60 mq
1
1
Classe energetica: G EP glnr: 496.42 kwh/㎡
Via Mellerio, 0, Milano
Caratteristiche
Indirizzo:Via Mellerio, 0
Totale mq:60 mq
Camere:1
Bagni:1
Locali:2
Stato conservazione:Ottimo
Piano: 4
Piani totali: 5
Riscaldamento: Autonomo
Ascensore: Si
Infissi: legno doppi vetri
Termosifoni: radiatori
Appartamenti Totali: 20
Anno di costruzione: 1930
Stato attuale: Libero al rogito
Spese condominio: € 100
Esposizione: tripla esposizione
Cucina: A vista
Arredato: Arredato
Posizione: Zona residenziale
Antenna Tv: Condominiale
Ripostiglio
Copertura ADSL
Copertura Fastweb
Impianto Telefonico
Impianto Elettrico: A norma
Doccia
Infissi: Legno
Vetri Serramenti: Doppio
Persiane: legno
Vasca
Porta Blindata
Cancello elettrico
Citofono
Lavanderia
VideoCitofono
Nelle vicinanze
Palestre
Centri Benessere
Campi da Calcio
Complessi Sportivi
Campi da Tennis
Piste Ciclabili
Parchi Giochi
Stazione Ferroviaria
Trasporti Pubblici
Asilo
Scuole Elementari
Scuole Medie
Scuole Superiori
Bar
Uffici postali
Centri commerciali
Uffici comunali
Metropolitana - Passante
Ospedale
Universita'
Movida
Farmacia
Planimetrie
Appartamento in vendita - Centro Storico
#

Valutazione
Immobiliare online

Ottieni subito con il nostro servizio online una valutazione immobiliare gratuita per sapere il valore della tua casa. successivamente valuteremo la tua proprietà e ti forniremo un rapporto dettagliato su quelli che consideriamo i suoi punti di forza e di debolezza e su come pensiamo che dovrebbe essere commercializzata.

Sei interessato? Contattaci!



Appartamento in Vendita
Milano Centro Storico
60 mq
1
1
Prezzo: € 670.000
Menu
Ricerca
Scrivici