Villette a schiera in Vendita Corbetta Castellazzo

Descrizione

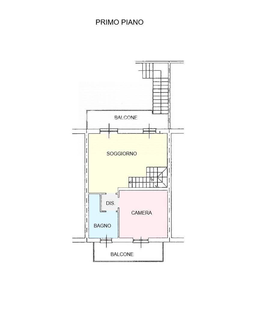
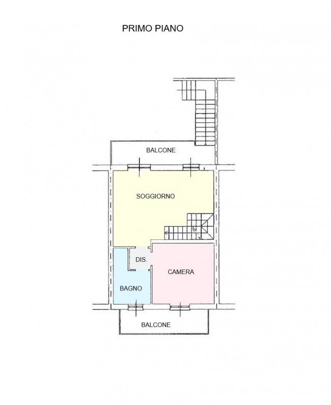
Corbetta: Zona Castellazzo de' Stampi, proponiamo in Vendita VILLA A SCHIERA di quattro locali con cucina a vista, sala da pranzo e tre bagni, disposta su tre livelli. Libera da FEBBRAIO 2027 con ampie dilazioni di pagamento.
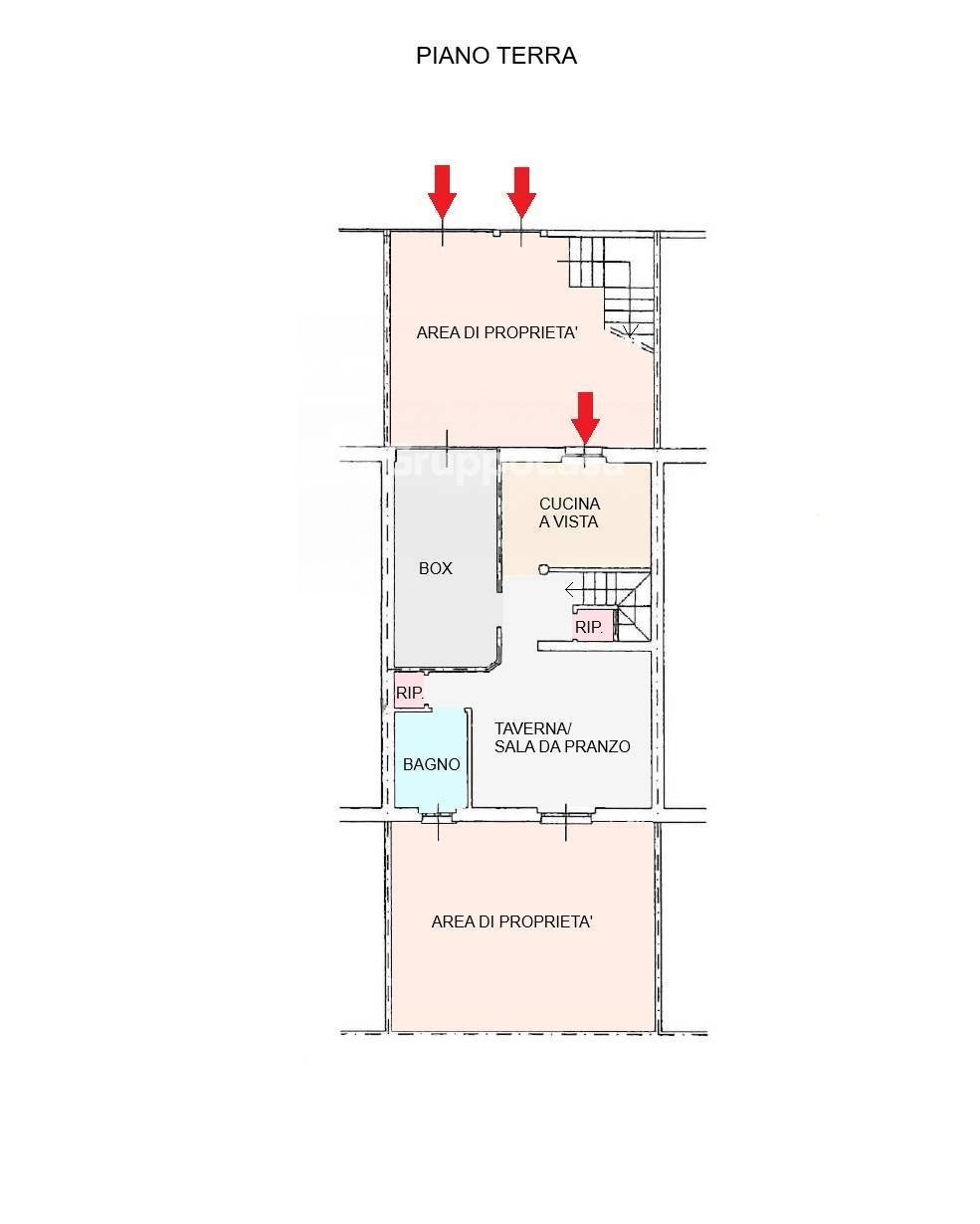
Completano la soluzione la taverna e il box posti al piano terra, oltre ad area di proprietà.
La soluzione si trova in ottimo stato di conservazione, grazie alla recente ristrutturazione (2021) di serramenti, facciata, impianto elettrico e porte interne. Inoltre è dotata di porta blindata, antifurto, pannelli fotovoltaici, zanzariere, tende da sole e impianto di riscaldamento autonomo.
Opportunità unica per chi desidera una casa ben curata e con un'area esterna che offre uno spazio all'aperto dove potere trascorrere momenti di relax durante la bella stagione.

Prezzo: € 310.000
150 mq
3
3
Classe energetica: E EP glnr: 167.59 kwh/㎡
Via Marzabotto, 16, Corbetta
Caratteristiche
Indirizzo:Via Marzabotto, 16
Totale mq:150 mq
Camere:3
Bagni:3
Locali:4
Stato conservazione:Buono
Piano: Piano rialzato
Piani totali: 3
Riscaldamento: Autonomo
Infissi: PVC/doppi
Termosifoni: a radiatori
Anno di costruzione: 2006
Stato attuale: Libero al rogito
Balconi: Presente
Giardino: Privato
Cucina: A vista
Box: Singolo
Posizione: Zona residenziale
Ripostiglio
Cantina
Vasca idromassaggio
Doccia
Infissi: PVC
Vetri Serramenti: Doppio
Persiane
Allarme
Vasca
Porta Blindata
Taverna
Tende da sole
Zanzariere
Citofono
Nelle vicinanze
Palestre
Centri Benessere
Campi da Calcio
Piste Ciclabili
Parchi Giochi
Stazione Ferroviaria
Trasporti Pubblici
Asilo
Scuole Elementari
Scuole Medie
Scuole Superiori
Bar
Uffici postali
Uffici comunali
Ospedale
Farmacia
Planimetrie
Villette a schiera in vendita - Castellazzo
Villette a schiera in vendita - Castellazzo
Villette a schiera in vendita - Castellazzo
#
#
#

Valutazione
Immobiliare online

Ottieni subito con il nostro servizio online una valutazione immobiliare gratuita per sapere il valore della tua casa. successivamente valuteremo la tua proprietà e ti forniremo un rapporto dettagliato su quelli che consideriamo i suoi punti di forza e di debolezza e su come pensiamo che dovrebbe essere commercializzata.

Sei interessato? Contattaci!



Villette a schiera in Vendita
Corbetta Castellazzo
150 mq
3
3
Prezzo: € 310.000
Menu
Ricerca
Scrivici