Casa singola in Vendita Inveruno Furato

Descrizione

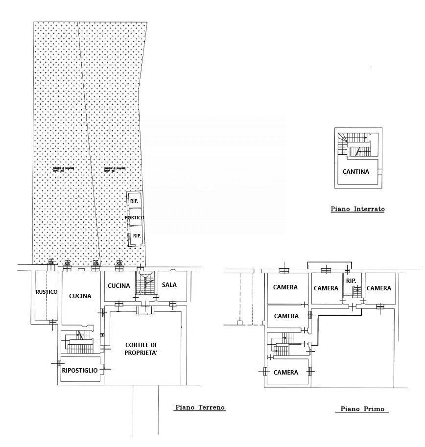
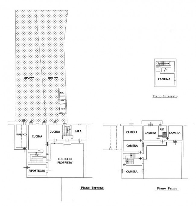
Inveruno: nella frazione di Furato, proponiamo in Vendita libero subito cortile indipendente di 8 locali disposti su due piani, oltre a ripostiglio e cantina completamente da ristrutturare.
Completano la proprietà il cortile di circa 90 mq e il giardino privato di circa mq 400.
Soluzione ideale per due nuclei famigliari, alla ricerca di indipendenza, ampi spazi, giardino privato, senza spese condominiali.

Prezzo: € 165.000
260 mq
2
Classe energetica: NA - Non Applicabile
via Santa Maria, 14, Inveruno
Caratteristiche
Indirizzo:via Santa Maria, 14
Totale mq:260 mq
Bagni:2
Locali:8
Stato conservazione:Da ristrutturare
Piano: Su due livelli
Piani totali: 2
Anno di costruzione: 1950
Stato attuale: Libero al rogito
Balconi: Presente
Giardino: Privato
Cucina: Abitabile
Posizione: Zona residenziale
Cantina
Camino
Persiane
Tapparelle
Planimetrie
Casa singola in vendita - Furato
#

Valutazione
Immobiliare online

Ottieni subito con il nostro servizio online una valutazione immobiliare gratuita per sapere il valore della tua casa. successivamente valuteremo la tua proprietà e ti forniremo un rapporto dettagliato su quelli che consideriamo i suoi punti di forza e di debolezza e su come pensiamo che dovrebbe essere commercializzata.

Sei interessato? Contattaci!



Casa singola in Vendita
Inveruno Furato
260 mq
2
Prezzo: € 165.000
Menu
Ricerca
Scrivici