Appartamento in Affitto Milano Arena

Descrizione

In via Giannone al numero 9 a Milano, proponiamo in Affitto un bilocale completamente arredato in zona Arena-Sempione.
L'Appartamento si trova al quarto piano di un condominio signorile degli anni '70, dotato di ascensore. Lo stabile si presenta ben mantenuto ed è corredato di servizio di portineria.

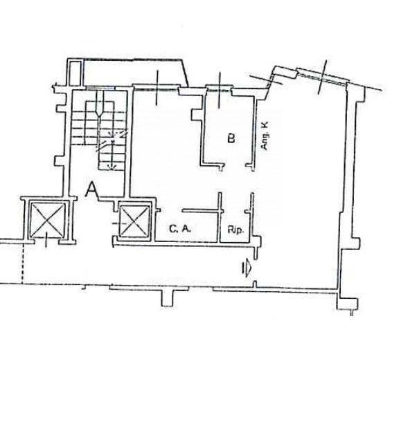
Il bilocale è esposto verso l'interno con affaccio sul giardino condominiale, e presenta ambienti luminosi e tranquilli. La zona giorno è composta da un ampio salone con cucina a vista, organizzato come spazio unico per pranzo e soggiorno. Un disimpegno con ripostiglio conduce alla zona notte, dove si trova una camera da letto di dimensioni generose con cabina armadio e accesso diretto al balcone. Il bagno è finestrato. Il balcone, collegato alla camera, si affaccia sul giardino interno del condominio.
Tra le dotazioni dell'Appartamento sono presenti aria condizionata, tapparelle elettriche, porta blindata e videocitofono, elementi che completano questo bilocale in Affitto ed offrono un ottimo livello di comfort.

La zona Arena-Sempione è una delle aree centrali e più richieste della città, caratterizzata da una buona presenza di servizi di quartiere, esercizi commerciali e spazi pubblici. Il contesto è ben collegato dai mezzi di trasporto pubblico, rendendo questo Appartamento in Affitto a Milano facilmente raggiungibile dalle principali zone della città.

Prezzo: € 1.500
55 mq
1
1
Classe energetica: D EP glnr: 160.62 kwh/㎡
Via Pietro Giannone, 9, Milano
Caratteristiche
Indirizzo:Via Pietro Giannone, 9
Totale mq:55 mq
Camere:1
Bagni:1
Locali:2
Stato conservazione:Ottimo
Piano: 4
Piani totali: 8
Ascensore: Si
Anno di costruzione: 1970
Spese condominio: € 200
Giardino: Comune
Cucina: A vista
Arredato: Arredato
Posizione: Centrale
Aria Condizionata
Persiane
Nelle vicinanze
Palestre
Centri Benessere
Piste Ciclabili
Parchi Giochi
Stazione Ferroviaria
Trasporti Pubblici
Asilo
Scuole Elementari
Scuole Medie
Scuole Superiori
Bar
Uffici postali
Uffici comunali
Metropolitana - Passante
Ospedale
Movida
Farmacia
Planimetrie
Appartamento in affitto - Arena
#

Valutazione
Immobiliare online

Ottieni subito con il nostro servizio online una valutazione immobiliare gratuita per sapere il valore della tua casa. successivamente valuteremo la tua proprietà e ti forniremo un rapporto dettagliato su quelli che consideriamo i suoi punti di forza e di debolezza e su come pensiamo che dovrebbe essere commercializzata.

Sei interessato? Contattaci!



Appartamento in Affitto
Milano Arena
55 mq
1
1
Prezzo: € 1.500
Menu
Ricerca
Scrivici